Unit Types

  • Beds
  • Availability

6 results

About the Property

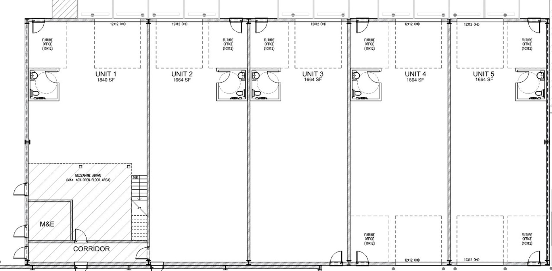
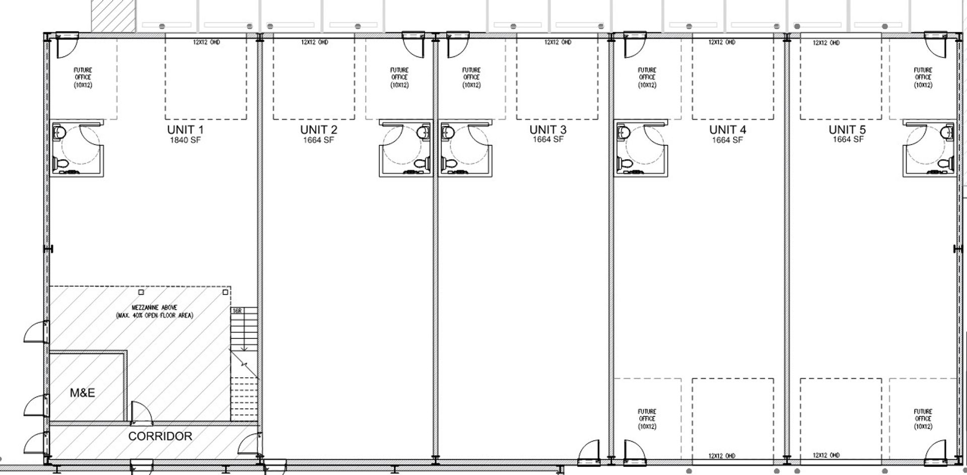
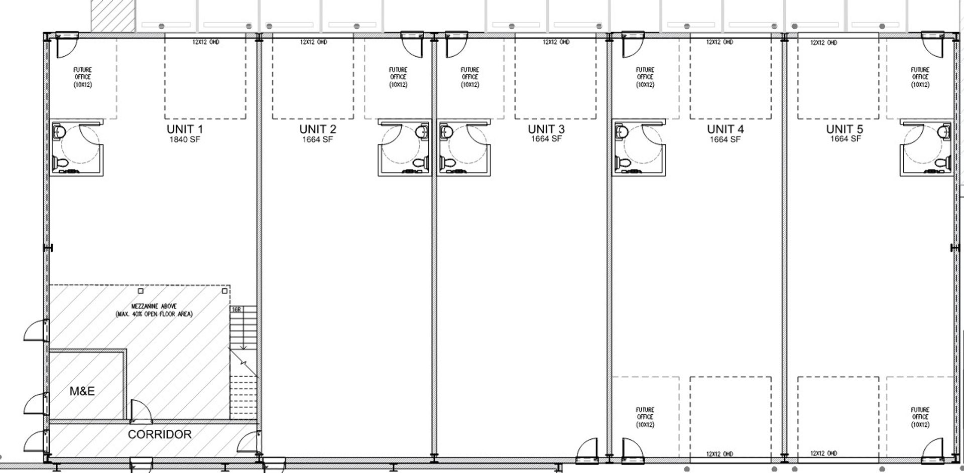
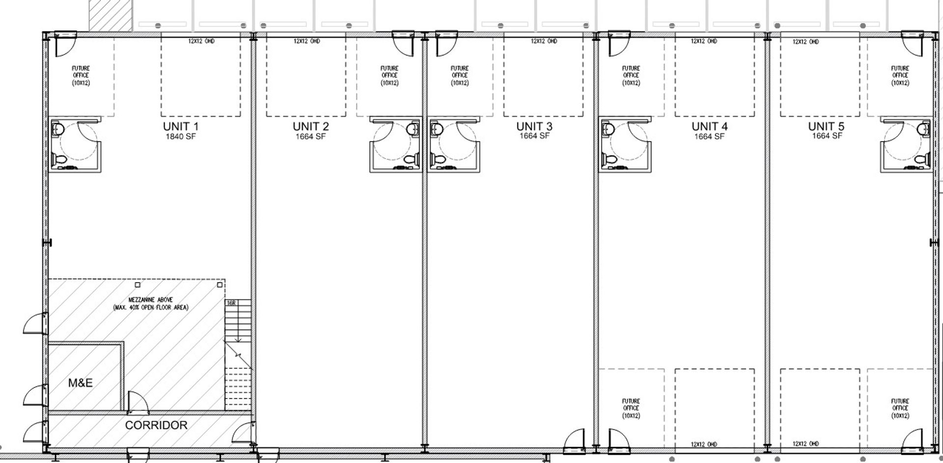
Crowne Pacific is excited to announce the upcoming development of a new Commercial Rental Unit (CRU) building, breaking ground in early 2026 on Airport Drive in Campbell River.

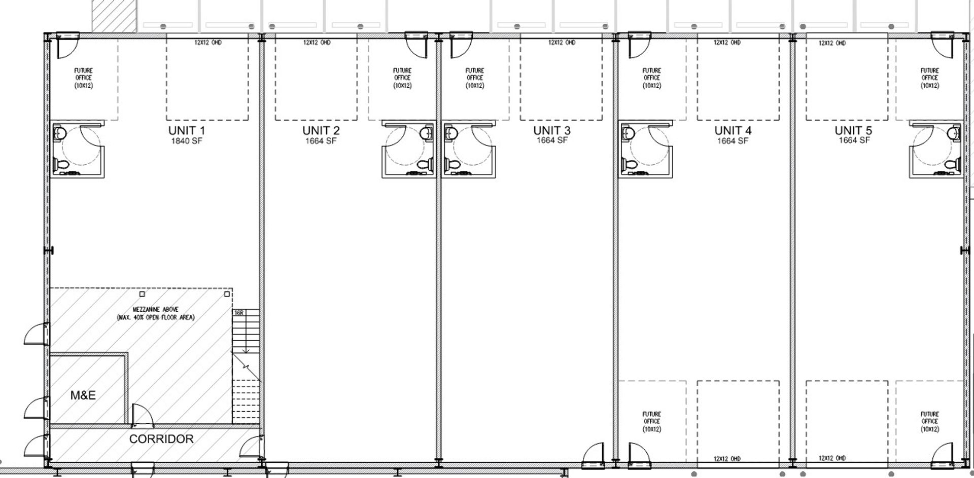
This thoughtfully designed building will offer over 14,000 square feet of leasable sapce, with the flexibility to accommodate a range of business needs. The current layout includes six individual units, starting at 1,664 square feet. Units can be combined or reconfigured to suit tenant requirements, offering customizable solutions for retail and commercial users. Ground side and airside access options available.

Located in an A1-zoned area, the development is well-positioned for a wide variety of business types. Build-to-suit options are available to help tenants create the ideal space for their operations.

Lease rates start at $16 per square foot for unit 6, $18 per square foot for units 1-3, and $20 per square foot for units 4 & 5 (Plus CAM).

Contact us today for availability and inquiries!

Nearby Properties

  • five7five Residences
    4.90 km

    five7five Residences

    575 South Dogwood Street, Campbell River, BC

    1, & 2 Bedrooms

    $1rent from